Магазин и адрес
Режим работы
Телефон
Доступность
Кишинев
Магазин 4elements Кишинев ➥Центр
ул. Митрополит Петру Мовилэ 41А
Пн-Пт: 9:00-17:30 Суббота: 9:00-13:30 Воскресенье: Выходной
+373 (22) 85 85 88 +373 (68) 16 17 19
Нет в наличии
Склад Ecosanteh SRL Кишинев ➥Чеканы
ул. Михаил Садовяну 42/7 (Территория АГАТ) Склад "Ecosanteh SRL"
Пн-Пт: 9:00-17:30 Суббота: 9:00-13:30 Воскресенье: Выходной
+373 (60) 07 47 82 +373 (22) 85 98 09
Нет в наличии
Тирасполь
Магазин 4elements ➥Тирасполь
г. Тирасполь ул. переулок Суклейский 23
Пн-Пт: 8:30-17:30 Сб - Вс: Выходной
+373 (777) 44 177
Нет в наличии
Экономия бюджета
«Куппер ПРАКТИК» - экономичная линейка надежных твердотопливных отопительных котлов для отопления жилых домов и других помещений площадью до 200 м².
Длительность горения составляет целых 6 часов
Универсальность
Котел универсален и может работать как в закрытых, так и в открытых системах отопления с принудительной циркуляцией теплоносителя. Кроме того, котлы могут использоваться как самостоятельный источник тепловой энергии в качестве дополнения к существующим системам отопления с газовыми, жидкотопливными или электрическими котлами.
Все необходимое в комплекте
В базовую комплектацию котла Куппер Практик входит: кочерга, шуровка, термометр, поворотный шибер.
Небольшие габариты
Котел занимает совсем немного места и может быть установлен непосредственно в жилом помещении.
«Куппер ПРАКТИК» - экономичная линейка надежных твердотопливных отопительных котлов для отопления жилых домов и других помещений площадью до 200 м².
Длительность горения составляет целых 6 часов
Универсальность
Котел универсален и может работать как в закрытых, так и в открытых системах отопления с принудительной циркуляцией теплоносителя. Кроме того, котлы могут использоваться как самостоятельный источник тепловой энергии в качестве дополнения к существующим системам отопления с газовыми, жидкотопливными или электрическими котлами.
Все необходимое в комплекте
В базовую комплектацию котла Куппер Практик входит: кочерга, шуровка, термометр, поворотный шибер.
Небольшие габариты
Котел занимает совсем немного места и может быть установлен непосредственно в жилом помещении.
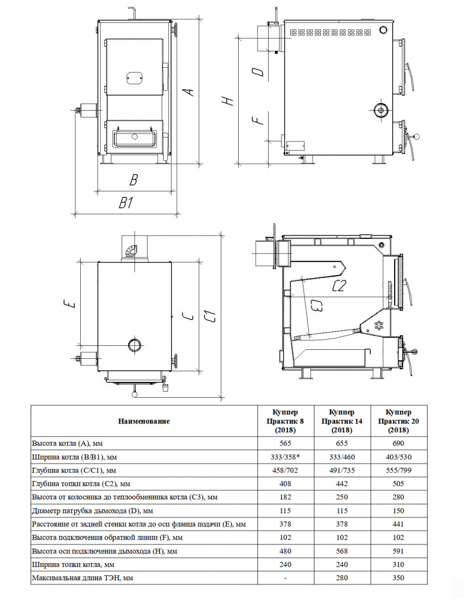
Твердотопливный котел 14 кВт Теплодар Куппер ПРАКТИК-14
Гарантия
36
месяцев
Отзывы не найдены
Войдите в учётную запись, чтобы мы могли сообщить вам об ответе







